Обяви За нас Контакти
Продава 3-СТАЕН
град София, Сухата река
311 050 €
608 360.92 лв.

(2 488 €, 4 866.11 лв./m2)
Не се начислява ДДС
История на цената
Коригирана в 12:47 на 26 септември, 2025 год.
Обявата е посетена 2154 пъти.
Площ:
125 m2
Етаж:
2-ри от 9
Строителство:
Тухла, Ще бъде въведен в експлоатация 2026 г.

Описание на имота:


Оферта 2443
Без комисионна от Купувача!!!

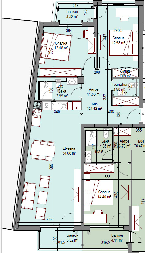
Ара Естейт продава тристаен апартамент с площ 124 кв.м., намиращ се на втори етаж, състоящ се от: дневна, две спални , баня с тоалетна, тоалетна, склад и два балкона. Имотът се намира в новострояща се сграда в кв. 'Сухата река' в близост до ул. 'Черковна'. Централното, но същевременно тихо и спокойно местоположение, е основен приоритет за живущите в този район на столицата. Сградата е в близост до: метростанция Хаджи Димитър (3мин.), църквата на ул. 'Черковна', метростанция Театрална (10мин.), училище 143 ОУ (5мин), детски градини Дъга и Слънце (5мин.), парк-градина (1 мин.), парк Заимов , магазини BILLA на 'Черковна' и на 'Владимир Вазов' (3 мин.). Районът е с добре изградена инфраструктура. Апартаментите в сградата са идеални както за живеене, така и за отдаване под наем.

Заложени са най-модерните технологии и съвременни материали, за да се създаде висок стандарт, уют и спокойствие на живущите. Апартаментите са проектирани по европейски стандарти, с добър жилищен обем и усещане за простор и светлина.

Ограждащите и преградни стени са тухлени, заложени са висококачествените тухли Wienerberger, фасадните стени са от полимерна мазилка и естествен камък.

Сградата е топлоизолирана с 10 см EPS изолация. Покривите са топлоизолирани с XPS изолация 10 см. и двойно хидроизолирани. Всички тераси също ще са хидроизолирани.

Общите части на сградата ще бъдат луксозно изпълнени и оборудвани с гранит, дървена ламперия и луксозен хидравличен асансьор. Прозорците ще бъдат оборудвани с шесткамерна дограма с трислоен стъклопакет и К стъкло,шумо- и топлоизолация

Предвидени са фасадно Лед осветление и декоративно градинско осветление, система за контрол на достъпа към сградата и към подземния гараж; система за видеонаблюдение, видеодомофонна система с контрол на достъп с карта или чипове; СОТ система за всеки апартамент; електронни водомери, при които цялата информация ще се сканира от входа на сградата; изводи за електрически щори за всеки прозорец в жилищната част; изводи за климатици във всяка стая; изводи за радиатори за ТЕЦ; подово отопление в баните и изводи за поставяне на лири; блиндирани врати.

Предлагат се и други имоти в жилищната сграда, която включва 15 апартамента във вх. А и 34 апартамента във вх. Б , магазин и общ подземен паркинг.

В сградата има от същия апартамент на рзлични етажи!!!

Цената е без промяна до влизане в експлоатация!
Виж всички обяви в domikandk.bazar.bg или тук
Особености
Тухла
За контакт:
0885772442
Агенция:
АРА ЕСТЕЙТ
0885 772 442
АРА ЕСТЕЙТ logo
Медал за прослужено време
В imot.bg от 2015 г.
domikandk.imot.bg
Адрес:
област София, гр. София, ул. Янтра 3
ИЗПРАТИ ЗАПИТВАНЕ
ИЗПРАТИ ЗАПИТВАНЕТО

Продава 3-СТАЕН
град София, Сухата река
Обява: 1c172724913572750

311 050 €
608 360.92 лв.
История на цената
(2 488 €, 4 866.11 лв./m2)

Не се начислява ДДС
ЗАПАЗИ ОБЯВАТА

Местоположение: град София, Сухата река

Допълнителни данни за имотите в района и сравнение с други райони: Търсене в АРХИВ 2013 - 2025 г.











Добави/редактирай
вид имот и район
*Средните цени са определени чрез медиана стойност.